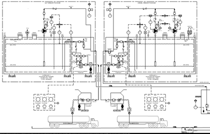
BRS Electrical were engaged by Liquip North Queensland to carry out electrical design and engineering for the fuel system upgrade, part of the Shute Harbour Redevelopment Project. Key elements of the Fuel System were the unloading and storage facilities, transfer pipelines and dispensing facilities.
- Design Commissioning, Electrical Drafting, Electrical Engineering, Site Commissioning Works, Switchboard Design
